Foodentropie
Réhabilitation d’une usine en restaurant
Description
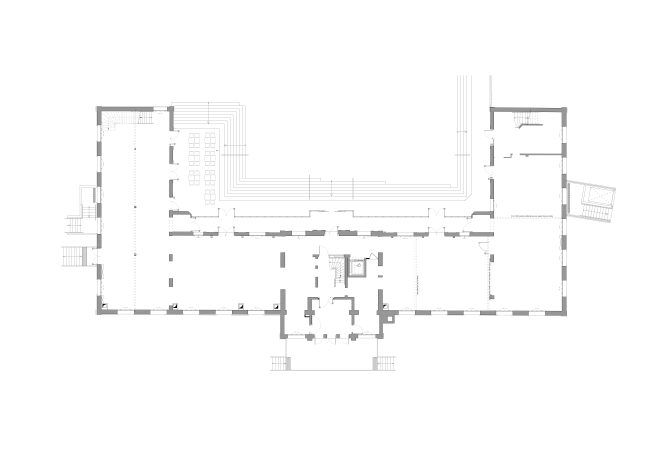
L’édifice, construit en 1900 comme usine de dentifrice du Docteur Pierre, est un véritable bijou d’architecture industrielle du 20è siècle. Aujourd’hui il fédère une communauté dédiée à l’alimentation durable autour d’une ferme urbaine en permaculture, de bureaux partagés et incubateur de start-up, de cuisines partagées, et d’un espace de restauration et événementiel ouvert au grand public géré par Foodentropie.
Autorisant d'immenses volumes avec peu de contraintes structurelles, il a été fait le choix de faire descendre tous les réseaux depuis le plafond, ce qui permet l'installation de postes de cuisines mobiles, s'adaptant aux besoins des clients sans restriction aucune. Une cuisine fixe, plus importante, partiellement ouverte et partiellement vitrée laisse les invités profiter visuellement de l'élaboration de leur repas.
L'aile dédiée aux évènements type projection/conférence/workshop est modulable, deux grandes cloisons phoniques et mobiles permettent de fractionner l'espace en fonction des besoins du moment.
Le traitement des sols et murs s'est voulu sobre, lisse et neutre; reléguant l'enveloppe au second plan pour laisser toute liberté d'expression à qui investira les lieux.
Galerie
Retour ⇡
Projets












