Le marché couvert
Construction d’un marché couvert
Description
Ce projet de halle de marché s’inscrit dans une démarche de dynamisation du cœur urbain, en proposant un équipement public fonctionnel, durable et fédérateur.
Conçu par l’agence SO2A, le bâtiment développe une écriture architecturale mêlant tradition et modernité, où la lumière et la légèreté de la structure jouent un rôle central.
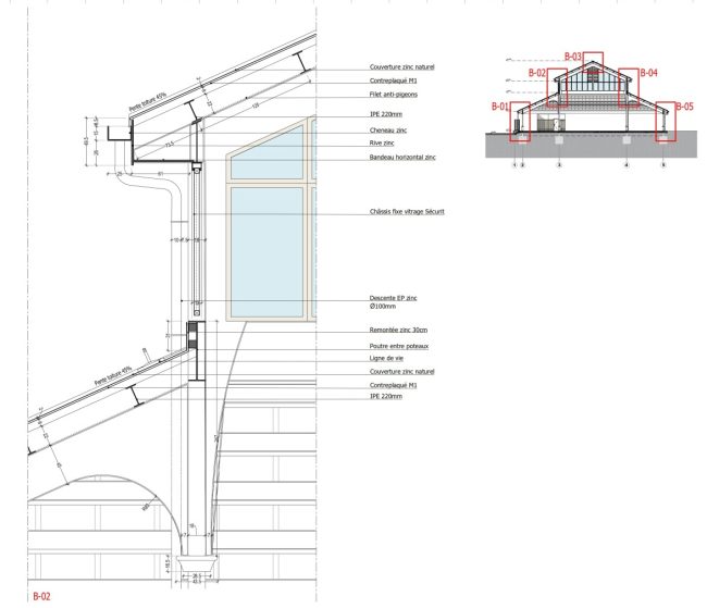
Le parti constructif repose sur une charpente métallique apparente, dont la finesse et l’élancement permettent de franchir de grandes portées sans multiplication de poteaux, garantissant une circulation fluide et une grande lisibilité des espaces pour les usagers comme pour les commerçants.
L’enveloppe est traitée par une couverture en zinc, choisie pour sa durabilité et sa capacité à s’intégrer harmonieusement dans le paysage urbain, tout en conférant au marché une identité contemporaine affirmée.
Dans le cadre de cette opération, l’intervention s’inscrit en collaboration avec l’agence SO2A.
Sous leur direction architecturale, une attention particulière est portée à la qualité de mise en œuvre, au respect du parti architectural et à la précision des détails constructifs.
Galerie
Retour ⇡
Projets



