Montmorency
Extension et réhabilitation d’un maison individuelle
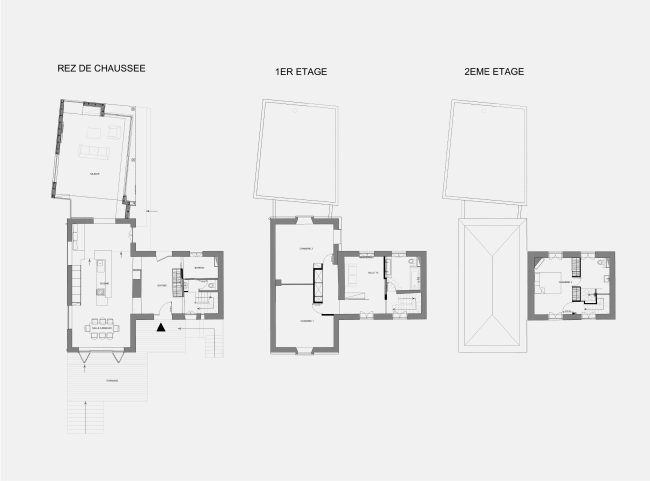
Description
L'objectif principal de la mission était de trouver des espaces de vie plus spacieux et plus communicants entre eux.
La problématique de ce projet était d’harmoniser l’ensemble de la maison afin d’éviter la lecture d’un patchwork de bâtiments issue de plusieurs époques. Il s’agissait de trouver un langage cohérent entre tous les bâtis.
Il a été décidé de conserver la meulière (bâtiment le plus ancien et le plus remarquable du site) intacte et de retravailler sa première extension (datant de la fin du XXème siècle) en la fondant au mieux avec le projet actuel. Cette opposition permettra, de manière paradoxale mais efficace, de souligner chacune de ces constructions.
Galerie
Retour ⇡
Projets
















